
Located at Lafayette and Broome, 200 Lafayette is a beautifully restored boutique office building featuring a landscaped and furnished rooftop deck, advanced infrastructure and efficient floor plates with unique architectural details. Exposed brick and beam and oversized windows provide the perfect environment to enhance productivity.






Exterior

Exterior

Eataly Ground Floor

Entrance

Lobby

Lobby

Rooftop Terrace

Rooftop Terrace

Rooftop Terrace

5th Floor Interior

5th Floor Interior

5th Floor Interior

5th Floor Interior

5th Floor Glass-Front Offices

6th Floor Office

6th Floor Interior

6th Floor Open Workspace

6th Floor Interconnecting Staircase

7th Floor Conference Room

7th Floor Pantry

7th Floor

7th Floor

7th Floor


Conveniently located just 1 block from Spring Street, 200 Lafayette is easily accessible by multiple subway lines and is surrounded by a variety of restaurants, hotels and retail.

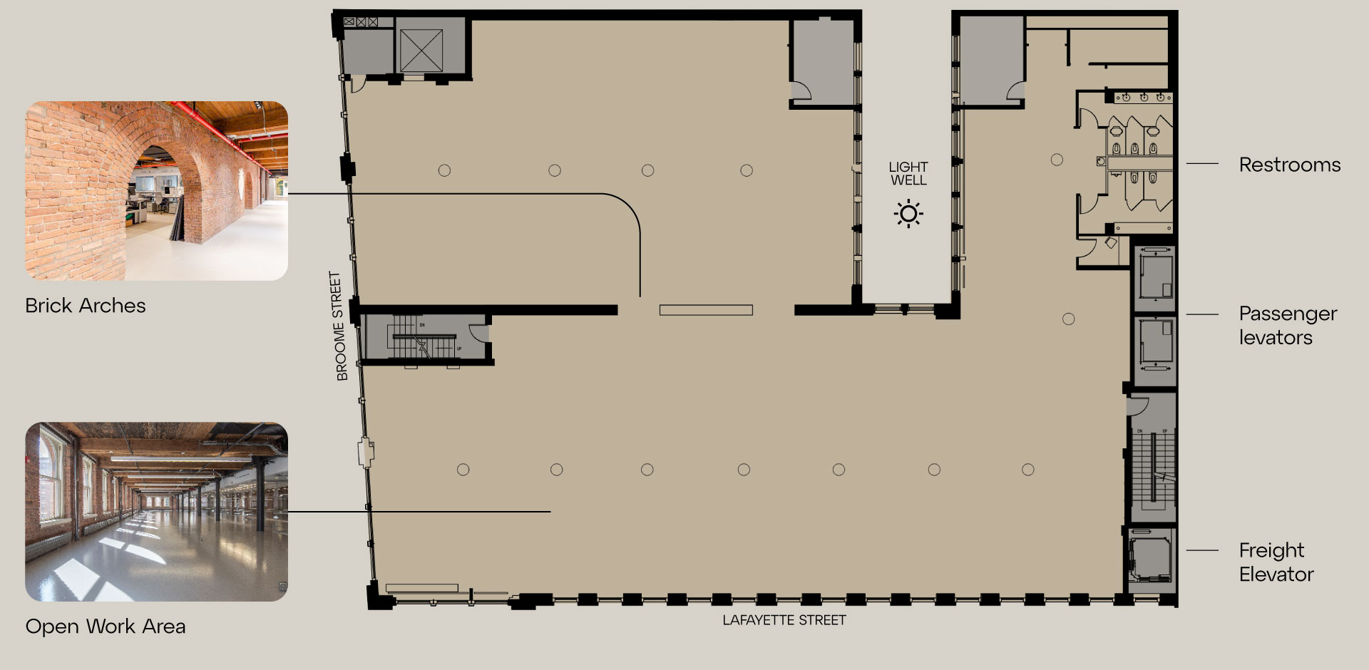
Click Floor to View Plan
CORE & SHELL
AS-BUILT
AS-BUILT
AS-BUILT




















